The Austyn-z B

The Austyn-z B

Home type: Single Family Attached Garage

3 Bed 2.5 Bath 2271 square feet

Move in Ready

Priced at
$733,238

Pre-GST. Includes home & lot.

*Prices subject to change without notice. E.&O.E.

Possession Date June 2026

Included Features

  • 9' Foundation
  • Backs on to green space
  • Fireplace
  • Main Floor Den
  • Side Entry
  • Sunshine Basement
  • Tiled Ensuite Shower

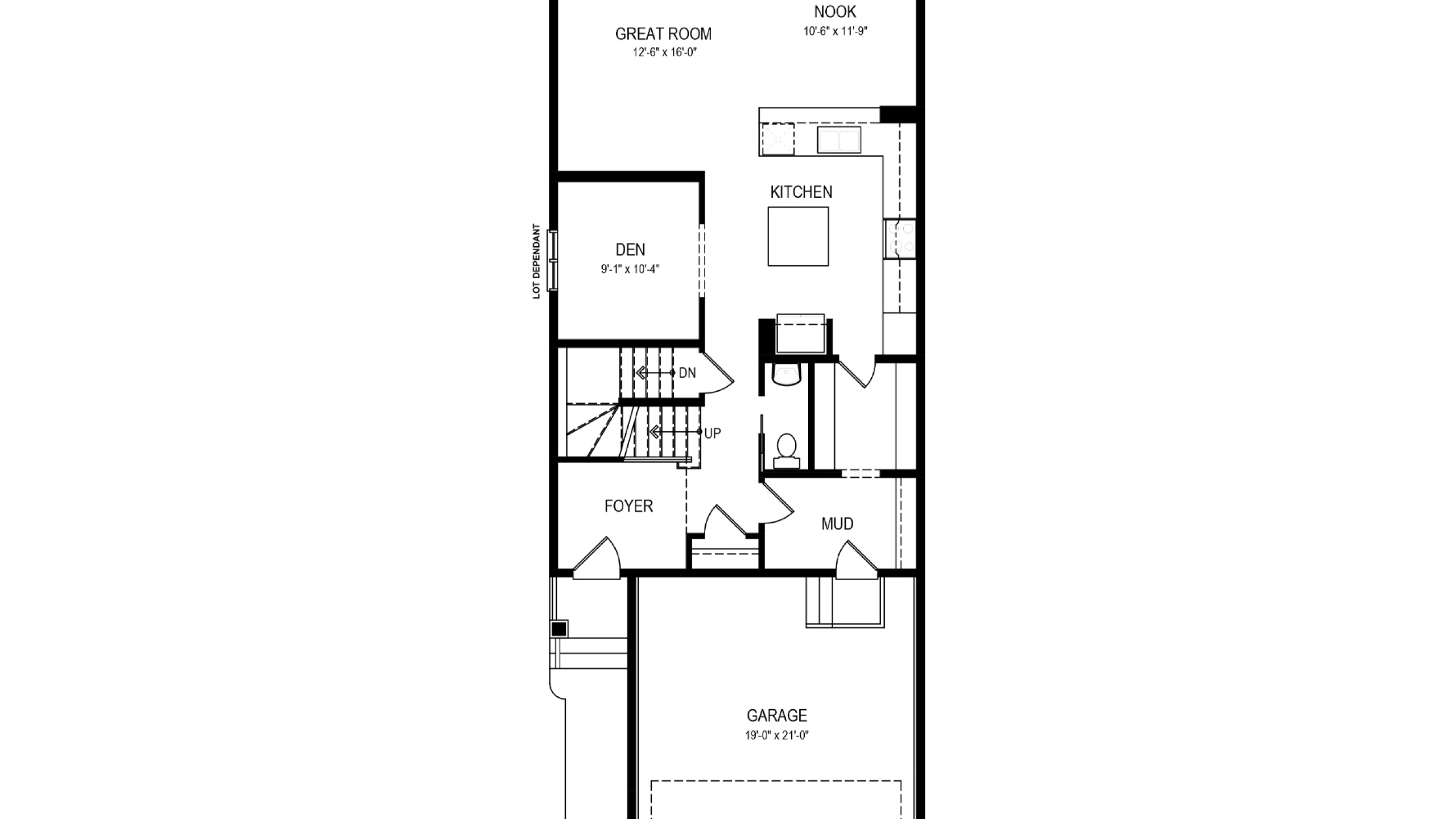
The Austyn-z has a total living space of 2,271 Sq. Ft., features 3 bedrooms, 2.5 baths, a den and a cozy upper floor bonus room. The foyer of this home includes a closet, private half bathroom and leads to the main floor living space. The Den sits off the kitchen that includes an extended eating bar and a walk-through pantry to the mudroom with a bench and access to the attached, double car garage. A great room and nook sit across the back of this home adorned with windows and patio door access to the  outdoors.  Enjoy the open to below feature on the second floor, just off the Primary Bedroom with walk-in closet and ensuite. The ensuite features an oval, free standing soaker tub, double sinks, and a water closet. to this upper floor is the bonus room, a laundry room, with counter space and a main bathroom. The two additional bedrooms, each including a walk-in closet, and a tech space sit at the rear of the home. Create more living space by adding an optional side entry and/or developing the optional basement.

Actual product may differ slightly from the images, floor plans and renderings shown.

Community

Walden

Last Chance in Walden! Explore our final phase *By appointment only*

Explore the community

Move-in Ready More homes in the area

Community: Walden

The Aviator-z III E

3 Bed 2.5 Bath 2143 square feet

Home Type: West Backing, Corner Lot, Additional Windows, Optional Rear Entry, 9 Foot Foundation, Tiled Ensuite Shower

$714,190 Pre-GST. Includes home & lot.

Community: Walden

The Canyon-z

3 Bed 2.5 Bath 2081 square feet

Home Type: Walkout Basement onto Greenspace/Pond, Balcony off Primary Bedroom, Rear Deck, Optional Extended Kitchen, Tiled Ensuite Shower

Sale Pending

Community: Walden

The Breeze-z II P

3 Bed 2.5 Bath 2054 square feet

Home Type: South Backing, Cul-De-Sac, 9 Foot Foundation, Optional Side Entry, Widened Garage, Vaulted Primary Bedroom,

$676,095 Pre-GST. Includes home & lot.

Sales Consultants

Sales consultant Sandi Newell

587.291.2288 daytonahomesyyc

About Sandi

During more than 20 years of industry experience in and around Calgary, I have successfully sold multi family, custom and single family homes. Since joining Daytona Homes in 2021, my successes have been recognized with customer service and sales awards. My approach in working with potential clients to find a new home that best suits their needs is both honest and collaborative, I love that every client is unique in their needs and wants so the learning never ends.  The greatest reward is to be there on possession day to welcome the family to their new home.

Communities

Languages

  • English

Subscribe to our newsletter

Treaty Seven Territory

Daytona Homes Calgary is located on the traditional territories of First Nations Peoples of Treaty 7. The Treaty 7 Lands in Southern Alberta are home to the Kainai Nation, Piikani Nation, Siksika Nation, Tsuu T’ina Nation, and the Bearspaw, Chiniki and Wesley (Stoney- Nakoda) Nations. Calgary is also home to Region 3 of the Métis Nation of Alberta.

© 2026 Daytona Homes. All Rights Reserved