The Austyn-z II CF

The Austyn-z II CF

Home type: Single Family Attached Garage

3 Bed 2.5 Bath 2374 square feet

Move in Ready

Priced at
$723,714

Pre-GST. Includes home & lot.

*Prices subject to change without notice. E.&O.E.

Possession Date May 2026

Included Features

  • 9' Foundation
  • Attached Garage
  • Fireplace
  • Foyer Open to Below
  • Main Floor Den
  • Side Entry
  • Tiled Ensuite Shower

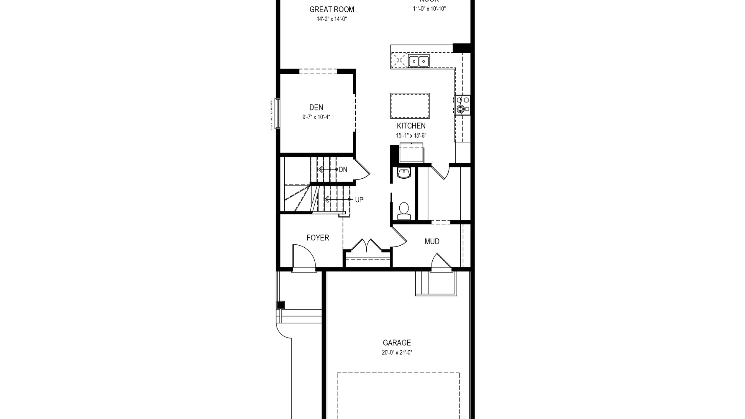
The Austyn-z II has a total living space of 2,374 sq.ft. with 3 bedrooms, 2.5 baths, a den and a cozy upper floor bonus room. The foyer of this home includes a closet and a privately located Half Bathroom and leads to the main floor living area. The Den with dual access, sits off the kitchen which includes a walk-through pantry to the mudroom and attached, double car garage. A great room and nook sit across the back of this home adorned with large windows and patio door access to the outdoors.  Enjoy the open to below feature on the second floor overlooking the foyer, just outside the Primary Bedroom with walk-in closet and ensuite. The ensuite features an oval, free standing soaker tub, double sinks, and a water closet. Central to this upper floor is the bonus room, large laundry room and a loft area. The two additional bedrooms each include a walk-in closet. Create more living space by adding an optional side entry and/or developing the optional basement. If more bedroom space is needed, we also have a 4 bedroom option available.

Actual product may differ slightly from the images, floor plans and renderings shown.

Community

Rangeview

BILDCR Winner of Community of the Year!

Explore the community

Move-in Ready More homes in the area

Community: Rangeview

The Ranger-z MF

3 Bed 2.5 Bath 1936 square feet

Home Type: West Facing Backyard, Legal Basement Suite, 9 Foot Foundation, 200 AMP, Fireplace, Tiled Ensuite Shower

$733,238 Pre-GST. Includes home & lot.

Community: Rangeview
Corner Lot Promo! Snowblower and Landscaping Credit!

The Austyn-z II MF

3 Bed 2.5 Bath 2375 square feet

Home Type: Corner Lot, 9 Foot Foundation, Optional Side Entry, Main Floor Den, Optional Fourth Bedroom Second Floor

$742,762 Pre-GST. Includes home & lot.

Community: Rangeview

The Palisade-z II MF

3 Bed 2.5 Bath 1878 square feet

Home Type: West Facing Back Yard, 9 Foot Foundation, Optional Side Entry, Widened Garage, Tiled Ensuite Shower

$685,619 Pre-GST. Includes home & lot.

Sales Consultants

Sales consultant Sandi Newell

403.618.8948 sandisellsdaytonahomesyyc

About Sandi

During more than 20 years of industry experience in and around Calgary, I have successfully sold multi family, custom and single family homes. Since joining Daytona Homes in 2021, my successes have been recognized with customer service and sales awards. My approach in working with potential clients to find a new home that best suits their needs is both honest and collaborative, I love that every client is unique in their needs and wants so the learning never ends.  The greatest reward is to be there on possession day to welcome the family to their new home.

Communities

Languages

  • English

Subscribe to our newsletter

Treaty Seven Territory

Daytona Homes Calgary is located on the traditional territories of First Nations Peoples of Treaty 7. The Treaty 7 Lands in Southern Alberta are home to the Kainai Nation, Piikani Nation, Siksika Nation, Tsuu T’ina Nation, and the Bearspaw, Chiniki and Wesley (Stoney- Nakoda) Nations. Calgary is also home to Region 3 of the Métis Nation of Alberta.

© 2026 Daytona Homes. All Rights Reserved