The Alfa-z

Home type: Single Family Attached Garage

3 Bed 2.5 Bath 2013 square feet

Home Model

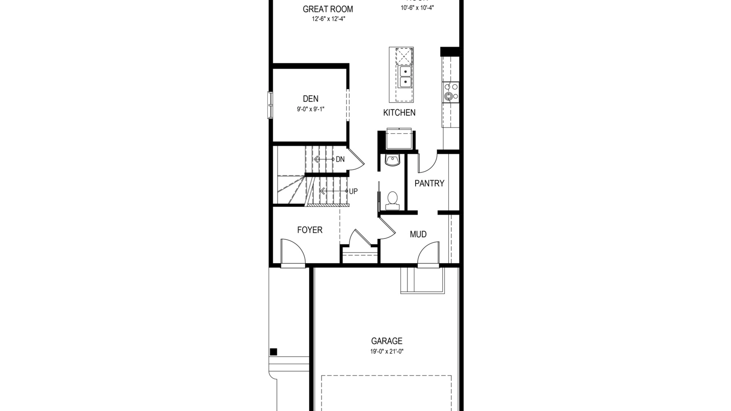
The Alfa offers 2,013 sq. ft. of well-balanced living space. A two-storey open-to-below at the front entry fills the foyer with natural light and creates a strong first impression, while a tucked-away half bath just off the foyer is kept out of sight from the main living areas. Toward the back of the home, the kitchen includes a central island and opens to the dining area and great room. Just off the kitchen, a pocket den offers a quiet, functional space for work or study. The walk-through pantry connects the kitchen to the mudroom, which features built-in storage and garage access.

Upstairs, a central bonus room separates the two front-facing bedrooms from the primary suite at the rear. This level also includes a full bathroom and a laundry room. The primary bedroom includes a walk-in closet and private ensuite.

Optional layouts include a U-shaped kitchen, full bathroom on the main floor, and side entry. Basement options include a finished rec room with an additional bedroom or a legal suite with its own kitchen, living area, laundry, and bedroom.

Elevations Exterior Styles

Some home models come in a variety of exterior styles to perfectly compliment the communities in which they’re built.

Alfa-z CF

Actual product may differ slightly from the images, floor plans and renderings shown.

Move-in Ready These homes are ready and waiting for you

Some home models come in a variety of exterior styles to perfectly compliment the communities in which they’re built.
Community: Rangeview

The Alfa-z CF

3 Bed 2.5 Bath 2013 square feet

Home Type: Corner Lot, Oversized Garage, 9 Foot Foundation, Foyer Open to BelowMain Floor Den, Optional Side Entry

$714,190 Pre-GST. Includes home & lot.

Community: Rangeview

The Alfa-z CF

3 Bed 2.5 Bath 2013 square feet

Home Type: 9 Foot Foundation, Oversized Garage, Optional Side Entry, Optional U-Shaped Kitchen, Main Floor Den, Fireplace

$657,048 Pre-GST. Includes home & lot.

Community: Rangeview

The Alfa-z CF

3 Bed 2.5 Bath 2013 square feet

Home Type: 9 Foot Foundation, Optional Side Entry, Fireplace, Optional U-Shaped Kitchen, 21' Wide Garage

$666,571 Pre-GST. Includes home & lot.

Communities This model is available to build in...

Southeast

Rangeview

BILDCR Winner of Community of the Year!

Subscribe to our newsletter

Treaty Seven Territory

Daytona Homes Calgary is located on the traditional territories of First Nations Peoples of Treaty 7. The Treaty 7 Lands in Southern Alberta are home to the Kainai Nation, Piikani Nation, Siksika Nation, Tsuu T’ina Nation, and the Bearspaw, Chiniki and Wesley (Stoney- Nakoda) Nations. Calgary is also home to Region 3 of the Métis Nation of Alberta.

© 2025 Daytona Homes. All Rights Reserved